Una casa che racconta storie – Frosinone, Via Fontana Unica
Immagina di varcare il cancello di una corte privata, ampia e accogliente, dove due auto trovano comodamente posto. Davanti a te si apre una casa indipendente di 250 mq, solida e generosa, pronta ad accogliere nuove storie.
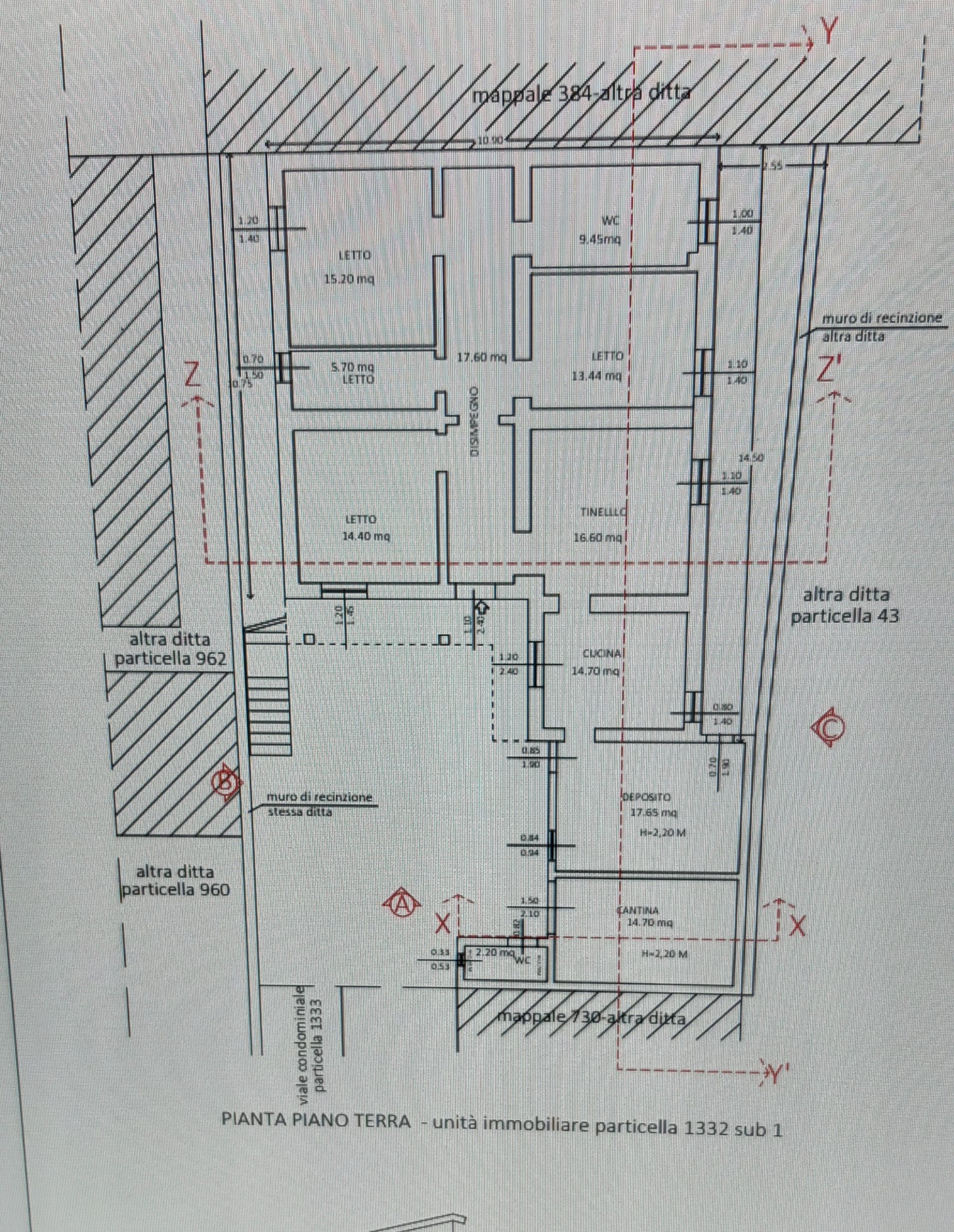
Al piano terra, ogni ambiente trasmette calore e tradizione: una cucina abitabile che invita a lunghe chiacchierate, una sala da pranzo e un soggiorno luminoso, tre camere matrimoniali che custodiscono intimità e riposo, due bagni funzionali e un grande living con forno a legna, perfetto per serate conviviali. La cantina completa questo livello, rendendolo già pronto e abitabile, con pavimenti in graniglia e infissi in alluminio bianco che riflettono la luce.
Salendo la scala esterna laterale, si accede al primo piano: un grande living con cucina a vista e balcone, due camere, uno studio e un bagno. Qui gli spazi sono da rifinire, un foglio bianco da plasmare secondo i propri desideri: un appartamento indipendente, una zona per i figli ormai grandi, oppure un investimento da trasformare in più unità abitative.
La proprietà si arricchisce di un ulteriore valore: due garage indipendenti di circa 20 mq ciascuno, situati proprio di fronte alla casa.
La posizione è strategica: vicina ai servizi, alle attività ricreative e alla stazione ferroviaria, con Roma raggiungibile in circa un’ora. Una soluzione ideale per famiglie, pendolari o chi sogna di trasformare questa dimora in un progetto più ampio, grazie al progetto già approvato per la realizzazione di quattro appartamenti.
Prezzo richiesto: € 180.000 (comprensivo dei garage).Classe Energetica G
Per info 3474707842
N.B. I Mq espressi in descrizione sono puramente indicativi.
La nostra valutazione
































